Промышленное оборудование и насосы
Ваше сообщение успешно отправлено. Спасибо.
Для того чтобы получить технико-коммерческое предложение с указанием цены, наличия и срока поставки выберите ниже нужную модель или несколько и добавьте в заявку, содержание заявки вы увидите в верхней части сайта. Не забудьте отправить вашу заявку указав e-mail и телефон.
Если Вы не знаете модель - заполните опросный лист (все поля которые Вам известны) и наш специалист подберёт вентилятор и вышлет ТКП.
ВКРМ являются аналогом вентиляторов ВКР. Предназначены для перемещения газопаровоздушных смесей, с примесями агрессивных газов и паров не вызывающих ускорение ускоренной коррозии нержавеющей стали. Данная модель предназначена для работы без сети воздуховодов, для эксплуатации в макроклиматических районах с умеренным климатом (У) и тропическим (Т) 1-ой категории размещения.
Вентилятор | DH | D/DH | Двигатель | Параметры в рабочей зоне | Масса не более, кг | ||
---|---|---|---|---|---|---|---|
N, кВт | n, об/мин | Q, тыс. м³/ч | Psv, Па | ||||
ВКРМ 4 | 400 | 1 | 0,37 | 915 | 1,4-3,3 | 160-0 | 80 |
ВКРМ 5 | 500 | 1 | 0,75 | 915 | 2,8-6,5 | 250-0 | 90 |
ВКРМ 6,3 | 630 | 1 | 2,2 | 950 | 6,0-13,5 | 430-0 | 120 |
ВКРМ 8 | 800 | 1 | 3,0 | 700 | 9,4-22,0 | 430 | 240 |
ВКРМ 10 | 1000 | 1 | 4,0 | 370 | 10,0-30,0 | 260 | 400 |
ВКРМ 12,5 | 1250 | 1 | 4,0 | 370 | 11,0-35,0 | 270 | 600 |
1250 | 1 | 4,0 | 370 | 14,0-45,0 | 430 | 600 | |
1250 | 1 | 5,5 | 750 Р.К.-470 | 11,0-35,0 | 270 | - |
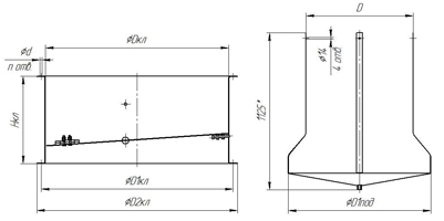
Габаритные, присоединительные и установочные размеры
Типоразмер | Н, мм | Н1, мм | h1, мм | h2, мм | D, мм | D1, мм | D2, мм | d, мм |
---|---|---|---|---|---|---|---|---|
ВКРМ 4 | 750 | 1700 | 550 | 600 | 830 | 770 | 940 | 14 |
ВКРМ 5 | 800 | 1720 | 550 | 600 | 830 | 770 | 940 | 14 |
ВКРМ 6,3 | 880 | 1770 | 550 | 600 | 830 | 770 | 940 | 14 |
ВКРМ 8 | 1140 | 2060 | 650 | 650 | 1180 | 1070 | 1160 | 14 |
ВКРМ 10 | 1460 | 2350 | 650 | 650 | 1400 | 1200 | 1360 | 14 |
Габаритные и присоединительные размеры клапана и поддона
Типоразмер | Клапан | Поддон к стакану | ||||||||
---|---|---|---|---|---|---|---|---|---|---|
Индекс | Dкл, мм | Dкл1, мм | Dкл2, мм | Нкл, мм | d, мм | n, шт | Индекс | Dпод, мм | D1под, мм | |
ВКРМ 4 | К-01 | 400 | 430 | 460 | 250 | 7 | 9 | П-00 | 700 | 990 |
ВКРМ 5 | К-02 | 500 | 530 | 560 | 250 | 7 | 8 | П-00 | 700 | 990 |
ВКРМ 6.3 | К-04 | 630 | 660 | 690 | 400 | 7 | 8 | П-00 | 700 | 990 |
ВКРМ 8 | К-05 | 800 | 830 | 860 | 400 | 10 | 12 | П-01 | 1000 | 1160 |
ВКРМ 10 | К-06 | 1000 | 1040 | 1080 | 400 | 10 | 16 | П-02 | 1200 | 1360 |
ВКРМ 12.5 | К-07 | 1250 | 1290 | 1330 | 475 | 12 | 18 | П-03 | 1400 | 1610 |
Системы вытяжной вентиляции промышленных и общественных зданий. Устанавливается на кровле.
Не является публичной офертой
2016-2025 ИП Дубин
ОГРНИП 315554300072398